IMPRESSUM
 

Wir planen mit modernsten Mitteln

Planung beginnt mit Fragen. Wie arbeiten Sie? Was ist für Sie wichtig? Was darf es kosten?
Auf der Grundlage von Plänen erstellen wir verschiedene Vorschläge und entwickeln ganzheitliche Konzepte
für die Arbeitsprozesse in Ihrem Betrieb. Wir denken an alles: Architektur, Klima, Licht, Farbe und Akustik.


 
 

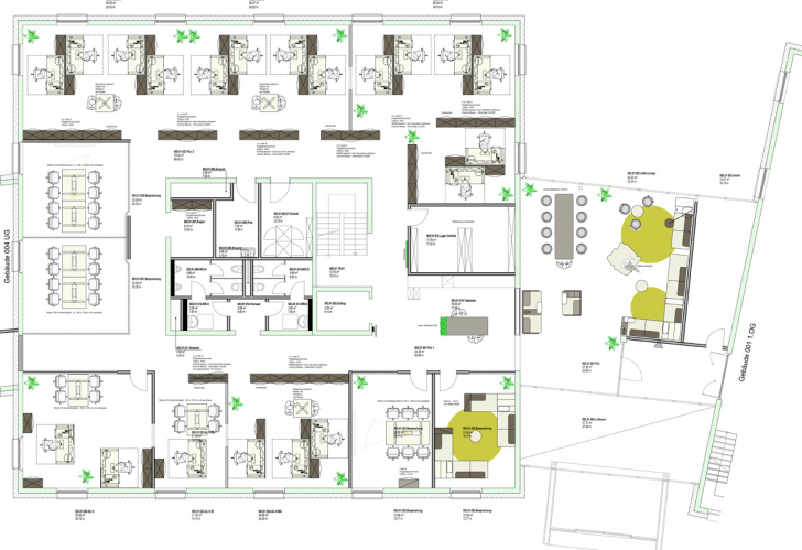
Ihr neues Büro in 3D

Wir arbeiten mit modernen Planungsinstrumenten wie CAD oder pCon.planner. Dank der Präsentation in 3D können Sie Ihr neues Büro anschauen, bevor es fertig ist.

Unser Angebot:

  • Beratung und Bedarfsermittlung
  • Vorplanung
  • Raumgestaltung
  • Arbeitsumfeld
  • Flächenverteilung
  • Visualisierung
  • Variantenplanung
  • Umsetzungsplanung
  • Flächenanalyse
  • Layoutplanung
  • Projektbegleitung
  • Raumtechnik
 
 
 

 
 

Büro Helbling AG Bern       Weyermannsstrasse 10        CH - 3008 Bern       Tel. + 41 (0)31 381 77 10        Fax  + 41 (0)31 381 08 66        info@buero-helbling.ch

Büro Helbling AG Bern        Weyermannsstrasse 10        CH - 3008 Bern
Tel. + 41 (0)31 381 77 10        Fax  + 41 (0)31 381 08 66        info@buero-helbling.ch

Büro Helbling AG Bern
Weyermannsstrasse 10
CH - 3008 Bern
Tel. + 41 (0)31 381 77 10
Fax  + 41 (0)31 381 08 66
info@buero-helbling.ch